Опубликованы новые подробности о ситуации с парковкой в новом ЖК в Самаре

В Кировском районе Самары обсуждается строительство парковки у нового жилого дома по адресу улица Стара-Загора, 249а. Вопрос был поднят после публикаций в СМИ и заявления депутата Александра Милеева, выразившего обеспокоенность нехваткой парковочных мест.
Депутат отметил, что застройщик ООО «Успех» планирует предоставить всего 0,3 машино-места на каждую квартиру. Это может привести к увеличению нагрузки на дворовую территорию и дороги.
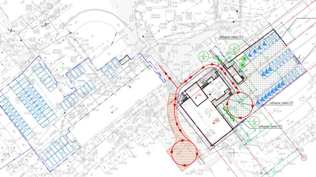
По данным ProGorodSamara, изначально проект предусматривал подземную парковку для всех жильцов. Это подтверждается проектной декларацией №63-000861 от 13 февраля 2024 года на сайте Дом.рф.
Однако позже поект был изменен. Теперь на придомовой территории предусмотрено одно место на три квартиры, а остальные парковки будут организованы на дополнительной территории, купленной у ООО «Ростелеком». Эта территория рядом с домом станет постоянной парковкой.
Представитель застройщика объяснил, что многие предпочитают не покупать места в подземных паркингах, поэтому решили сделать наземную парковку для удобства жителей.
С учетом дворовой территории и дополнительной площади будет 142 машино-места, что соответствует нормативам (одно место на квартиру).
Обсуждения проекта пройдут с 19 по 26 марта. Для ознакомления приложен генеральный план территории.



